townhouse in Pilar de la Horadada
- €285.500
- €285.500
Beschreibung
Real Estate in Residencial Natura IV
Modern villas under construction with optional private pool in Pilar de la Horadada
Exclusive promotion of just 4 contemporary homes
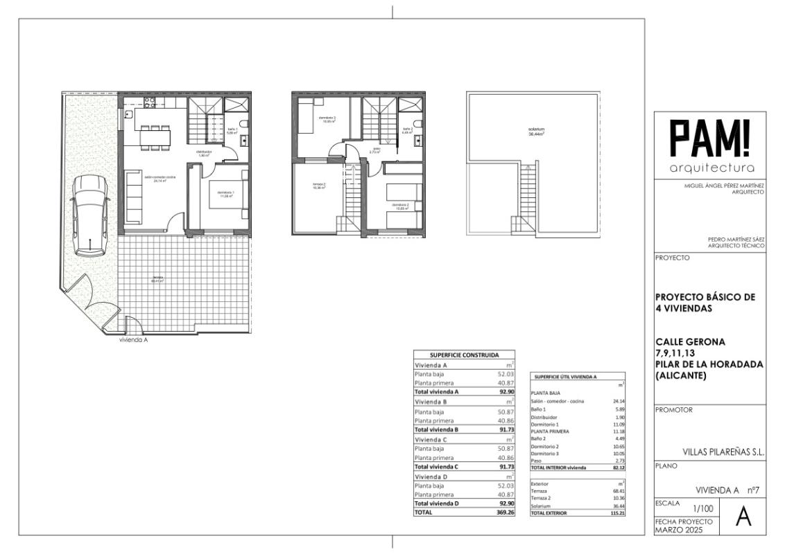
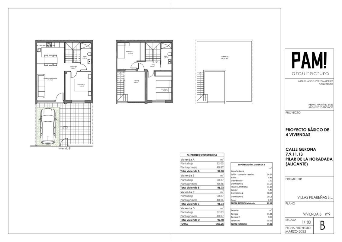
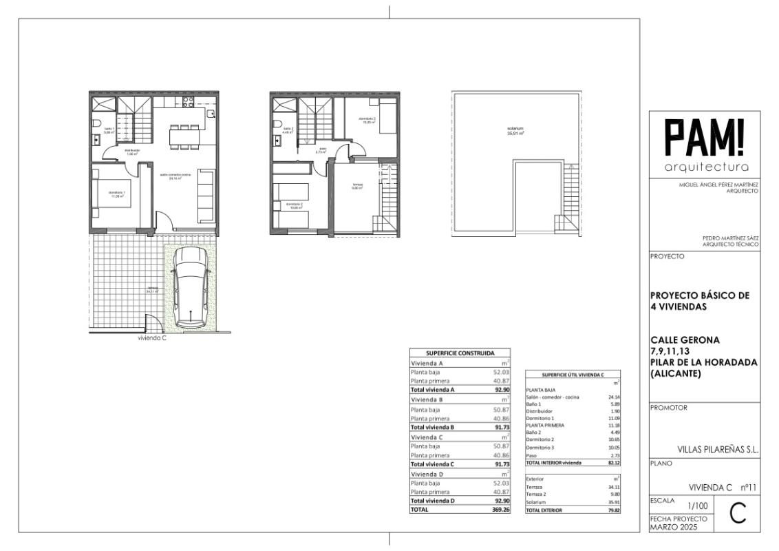
We present a unique opportunity to acquire one of the four new construction villas in a quiet residential area of Pilar de la Horadada, a charming town in the south of the Costa Blanca. These semi-detached and terraced properties have been designed with comfort, energy efficiency, and a modern Mediterranean lifestyle in mind. Located just 3 km from the sea and a few minutes from the city center, they combine tranquility with proximity to all amenities.
Advantages of a new building Residencial Natura IV
Current design with outdoor spaces to enjoy year-round
Each villa features 3 bedrooms and 2 full bathrooms distributed on a single floor, with open and bright interiors that maximize natural light entry. The open design connects the living room, kitchen, and dining area into a functional and cozy space. All homes have a private garden and a rooftop solarium with pre-installation for an outdoor kitchen, ideal for enjoying the region’s sunny climate throughout the year. Additionally, there is the possibility of adding a private pool and parking on the plot.
Quality materials and modern finishes
These homes have been constructed with selected materials to offer durability, aesthetics, and efficiency:
Armored entry door for increased securityPVC windows with thermal break and double glazingFully furnished bathrooms with shower screens includedUnderfloor heating in both bathroomsAerothermal system for sanitary hot water, efficient and eco-friendlyPre-installation of ducted air conditioning throughout the home
Life in the city Pilar de la Horadada
A location that has it all
Pilar de la Horadada is a town with tradition and life. Its surroundings combine residential tranquility with all necessary services: supermarkets, restaurants, medical centers, green areas, sports facilities, and active cultural offerings. The beaches of Torre de la Horadada and Mil Palmeras, with crystal clear waters and blue flags, are just minutes away by car.
Additionally, its strategic location allows easy access to golf courses, shopping centers, and the airports of Murcia and Alicante, making these villas an excellent choice for a permanent residence, a second home, or an investment.
Connections and nearby services:
Beaches of Torre de la Horadada and Mil Palmeras – 3 km (5 min)Lo Romero Golf Course – 7 km (10 min)La Zenia Boulevard Shopping Center – 15 km (15 min)Corvera Airport (Murcia) – 40 km (40 min)Alicante International Airport – 55 km (55 min)
Experience the Mediterranean lifestyle you’ve always dreamed of
These villas offer excellent value for money in a growing area with high demand. They are perfect for those seeking a modern, efficient, and well-located home, whether to live year-round, enjoy vacations, or invest with high profitability.
Price range: 28,500 € – 295,000 €
Do not miss this opportunity! Contact us today for more information, plans, or to schedule a personalized visit.
Adresse
Auf Google Maps öffnen-
Stadt: Pilar de La Horadada
-
Staat/Landkreis: Valencianische Gemeinschaft
-
Land: Spanien
Eigenschaften
Einzelheiten
Aktualisiert am March 22, 2026 unter 9:57 Uhr-
Eigenschaft ID P8209
-
Preis €285.500
-
Größe der Immobilie 90 Pilar de La Horadada
-
Landfläche 77 Pilar de La Horadada
-
Schlafräume 3
-
Bäder 2
-
Eigenschaft Typ Stadthaus
-
Costas Costa Blanca
-
Gemeinden Pilar de La Horadada
Tour vereinbaren
Ähnliche Inserate
Townhouse in La Mairena
La Mairena,Marbella,Málaga,Andalusien,SpanienAppartment | Fully Renovated in 2025 | 3 Bedrooms • 3 Bathrooms...
townhouse in Mijas
Mijas,Mijas,Málaga,Andalusien,SpanienYour new home in Mijas is where comfort merges with nature. Explore...
townhouse in Mijas
Mijas,Mijas,Málaga,Andalusien,SpanienYour new home in Mijas is where comfort merges with nature. Explore...
townhouse in Mijas
Mijas,Mijas,Málaga,Andalusien,SpanienYour new home in Mijas is where comfort merges with nature. Explore...
- Del Sol Estates & Investitionen






















