Wohnung in Alfaz del Pi
- €950.000
Beschreibung
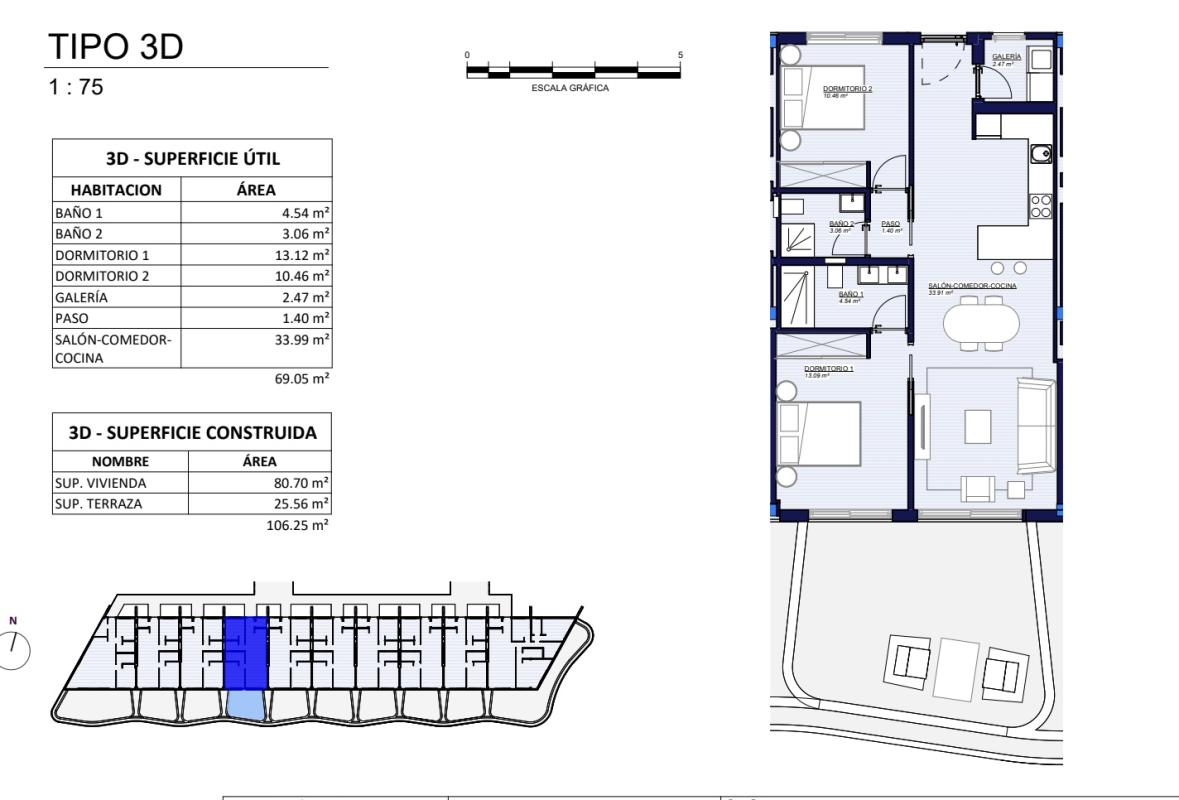
Located on a sprawling plot of over 30,000 square meters, this exceptional development can be found in the prime area near the beach and the city center. The site is adorned with original gardens dating back to 1963, now beautifully restored and enhanced to ensure privacy and tranquility. What truly sets these apartments apart are the expansive gardens and large terraces, ranging from 20 to over 130 square meters, offering stunning views of either the sea or the stunning natural park.
This urbanization offers an abundance of resort-like amenities, providing ample opportunities for leisure without needing to leave the premises. Residents can enjoy an indoor heated swimming pool, multiple outdoor pools, an equipped gym, and a sauna. Additional features include concierge services, tennis and paddle courts nestled within the landscaped surroundings, a dedicated yoga area, and an orchard. These facilities are thoughtfully designed to enhance the living experience, catering to a modern, active lifestyle.
Alfaz del Pi offers a charming blend of coastal and urban living, with its picturesque surroundings and vibrant community. The development offers dwellings ranging between 490,000 € and 850,000 €, featuring 2 to 3 bedrooms and surfaces spanning 71 m² to 124 m², promising a luxurious living experience. Residents will appreciate the proximity to both the natural landscape and the bustling life of the city, striking a perfect balance between relaxation and convenience.
Adresse
-
Stadt: Alfaz del Pi
Eigenschaften
Einzelheiten
Aktualisiert am März 21, 2026 unter 7:26 Uhr-
Eigenschaft ID P8228
-
Preis €950.000
-
Größe der Immobilie 109
-
Schlafräume 3
-
Bäder 2
-
Eigenschaft Typ Wohnung
-
Costas Costa Blanca
-
Gemeinden Alfaz del Pi
Tour vereinbaren
Ähnliche Inserate
Erdgeschosswohnung in La Cala Hills
La Cala Hills,Mijas,Málaga,Andalusien,SpanienElevated Ground Floor with Views onto the Sierra de Mijas Mountain Range...
Wohnung im mittleren Stockwerk in Fuengirola Centro
Fuengirola,Fuengirola,Málaga,Andalusien,SpanienDiscover Regalo, a stylish and modern 3-bedroom apartment built in 2025, located...
Erdgeschosswohnung in Elviria
Elviria,Marbella,Málaga,Andalusien,SpanienBEST BUY ALERT – Elviria Beachside (exclusive new listing) – Stunning 2...
Middle Floor Apartment in Malagueta
Malagueta,Málaga,Málaga,Andalusia,SpainMagnificent apartment in La Malagueta, just a few metres from the sea...
- Del Sol Estates & Investitionen













